Community
    Přihlásit se ke svému účtu

    Zaregistrujte se do extranetu Dlubal, abyste získali většinu softwaru a měli exkluzivní přístup k vašim osobním údajům.

    Vytvořit účet
    Přihlášením vyjadřujete souhlas se Všeobecnými obchodními podmínkami společnosti Dlubal Software. Přečtěte si prosím naše Prohlášení o ochraně osobních údajů a naše Prohlášení o používání cookies.
    0
    E-shop
    Kontaktovat prodejní tým
    Jazyk
    • Deutsch
    • English
    • Français
    • Español
    • Português
    • Italiano
    • Česky
    • Polski
    • Pусский
    • 中文(简体)
    • Odvětví
      • Železobetonové konstrukce
      • Předpjaté betonové konstrukce
      • Ocelové konstrukce
      • Dřevěné konstrukce
      • Zděné konstrukce
      • Hliníkové a lehké konstrukce
      • Budovy
      • Průmyslové konstrukce a zařízení
      • Potrubní systémy
      • Mostní konstrukce
      • Jeřáby a jeřábové dráhy
      • Věže a stožáry
      • Skleněné konstrukce
      • Membránové a textilní konstrukce
      • Lanové a napínací konstrukce
      • Laminátové a sendvičové konstrukce
      • Dočasné stavby
      • Lešení a regálová konstrukce
      • Příbřežní konstrukce
      • Sila, vodojemy a zásobní nádrže
      • Stavby pro získávání obnovitelných zdrojů energie
      • Solární konstrukce a montážní systémy
      • Lodní konstrukce a plovoucí tělesa
      • Dopravníkové konstrukce
      • Vrtací konstrukce
      • Bazény, aquaparky a koupaliště
      • Kontejnerové stavby
      • Vrtané piloty
      • Schodišťové konstrukce
      • Elektrárny
      • Ocelové vodní stavby
      • Strojní konstrukce
      • Pneumatické konstrukce
      Oblasti použití
      • Statika konstrukcí
      • Výpočty metodou konečných prvků (MKP)
      • Simulace větru a generování zatížení větrem
      • Analýza napětí
      • Nelineární výpočty
      • Posouzení stability
      • Nelineární analýza boulení
      • Analýza vázaného kroucení
      • Dynamická a seizmická analýza
      • Nelineární dynamika
      • Pushover analýza
      • Form-finding a střihové vzory
      • Ocelové přípoje
      • Projektování metodou BIM
      • Profily tvarované za studena
      • Interakce konstrukce s podložím
      • Statika fasádních systémů
      • Základy a základové konstrukce
      • Fáze výstavby
      • Požární odolnost
      Normy
      • Eurokódy (EC)
      • Německé normy (DIN)
      • Britské normy (BS EN, BS)
      • Italské normy (NTC)
      • Americké normy
      • Kanadské normy (CSA)
      • Australské normy (AS)
      • Švýcarské normy (SIA)
      • Čínské normy (GB, HK)
      • Indické normy (IS)
      • Mexické normy (RCDF, CFE Sismo 15)
      • Ruské normy (SP)
      • Jižněafrické normy (SANS)
      • Brazilské normy (NBR)
      Online služby
      • Nástroj pro stanovení oblastí zatížení – ikona horního menu Mapy zatížení sněhem, rychlosti větru a seizmického zatížení
      • Ikona pro výpočet v cloudu Výpočty v cloudu
      • Ikona Statická analýza Wiki Wiki pro statiku
      • Ikona Průřezové charakteristiky ocelových a dřevěných průřezů Průřezové charakteristiky ocelových průřezů
      Statický výpočet konstrukce pro solární systémy

      Dlubal Software vám pomáhá vytvářet a ověřovat různé solární montážní systémy. Pracujte efektivně s ocelovými, hliníkovými a betonovými konstrukcemi v jediné aplikaci.

      Prozkoumat nástroje
      Solární konstrukce Solární konstrukce | Mobilní verze
      Dlubal API

      Nová Dlubal API služba (gRPC) vám poskytuje flexibilní rozhraní pro software pro statickou analýzu založený na Pythonu a C# s přímým přístupem ke kompletnímu sortimentu produktů Dlubal.

      Začněte s API
      Pozadí pro hlavní menu banneru API Pozadí pro hlavní menu banneru API
    • Ikona reprezentující RFEM 6, softwarovou aplikaci pro výpočty pomocí metody konečných prvků. RFEM 6 Jediný program pro statické výpočty, který potřebujete

      RFEM 6 slouží jako základ modulární rodiny programů a používá se k definování konstrukcí, materiálů a účinků pro deskové, stěnové, skořepinové a nosníkové konstrukce, jakož i pro tělesa a kontaktní prvky.

      Více informací
      Ikona přepnutí addonu Addony
      • Doplňkové analýzy
      • Dynamická analýza
      • Speciální řešení
      • Dimenzování
      • Přípoje
      Ikona programu RSTAB 9 bez ohraničení RSTAB 9 Ikonický program pro rámové a příhradové konstrukce

      RSTAB 9 je výkonný program pro analýzu 3D prutových konstrukcí, který statikům pomáhá vyhovět požadavkům moderního stavebního inženýrství a odráží nejnovější trendy v oboru.

      Více informací
      Ikona přepnutí addonu Addony
      • Doplňková analýza
      • Dynamická analýza
      • Speciální řešení
      • Navrhování
      Ikona RSECTION 1 bez ohraničení RSECTION 1 Výpočty uživatelských průřezů

      RSECTION podporuje stavební inženýry tím, že určuje průřezové charakteristiky pro širokou škálu průřezů a umožňuje následnou analýzu napětí.

      Více informací
      Ikona RWIND 3 bez ohraničení RWIND 3 CFD software pro digitální větrné tunely

      RWIND 3 je digitální větrný tunel pro simulaci proudění větru kolem libovolných geometrických tvarů budov a pro výpočet větrných zatížení na jejich povrchy.

      Více informací
      Ikona API Dlubal API Vaše brána do parametrického modelování a automatizace

      Nová Dlubal API služba (gRPC) vám nabízí flexibilní rozhraní pro statický software na bázi Pythonu a C#, s přímým přístupem k celé škále produktů Dlubal. Využijte plynulou a výkonnou integraci do vašeho Dlubal softwaru – ideální pro parametrické modelování a komplexní optimalizační úlohy.

      Objevte API
      Dokumentace API Dokumentace API
      • Index
      • Začínáme
      • Aplikace
      • Objekty modelu
      • Předplatné a ceny
      • Příklady
      MKP pro ocelové spoje

      Navrhujte a analyzujte ocelové spoje pomocí CBFEM, v souladu s EN 1993‑1‑8 a AISC 360, plně integrované v programu RFEM 6 pro rychlejší a přesnější konstrukční pracovní postupy.

      Více informací
      Ocelové spoje Ocelové spoje
      Komunita Dlubal

      Tato platforma nabízí prostor pro technické dotazy, angažované diskuse o analýze a návrhu konstrukcí, návrhy nových funkcí a přímou interakci s týmem Dlubal a ostatními uživateli.

      Připojte se nyní
      Pozadí hlavní nabídky banneru komunity Dlubal Pozadí hlavní nabídky banneru komunity Dlubal
      Starší produkty
    • Podpora
      • Často kladené dotazy (FAQ)
      • Databáze znalostí
      • Funkce programů
      • Licencování
      • Položit individuální dotaz
      • Náš tým technické podpory
      • Navrhnout novou funkci programu nebo vlastní nápad
      • Řešení problémů s licencováním & autorizací
      • Nahlásit problém nebo chybu
      • Aktualizace programu
      • Problémy v programu
      • Vzorce | Matematika je zábava!
      Školení
      • První kroky s programem RFEM
      • První kroky s programem RSTAB
      • Online školení
      • Školení ve firmě Dlubal
      • Individuální školení
      • Videa
      • E-learningová videa
      • Webináře – Informace a vzdělávání online
      • Online kurzy
      Servis
      • Bezplatná podpora / servis
      • Extranet | Můj účet
      • Servisní smlouva
      • Geo-Zone Tool pro stanovení zatížení
      • Aktualizace a upgrady
      • Starší verze programů
      Prodej
      • E-shop
      • Náš obchodní tým
      • Kontaktovat obchodní oddělení
      • Domluvte si online prezentaci
      • Proč Dlubal Software
      Asistentka podpory s využitím AI
      • Mia – Vaše nonstop AI asistentka
      • Seznamte se se svou osobní AI asistentkou
      Bezplatná podpora a servis

      Potřebujete pomoc? Využijte bezplatné možnosti podpory, včetně 24/7 AI asistence, e-mailové podpory a webinářů.

      Další informace
      Bezplatná podpora a servis Bezplatná podpora a servis
      Rychle najít odpovědi

      Najděte rychlé odpovědi na časté otázky týkající se softwaru Dlubal. Vyhledejte nebo filtrujte stovky často kladených dotazů a vyřešte svůj problém během chvilky.

      Zobrazit FAQ
      Často kladené dotazy (FAQ) FAQ | Mobilní verze
    • Novinky
      • Aktuální novinky
      • Nové funkce v produktech
      • Přihlásit se k odběru novinek
      • Nové programy
      • Dlubal blog
      Školení
      • Online školení
      • Individuální školení
      Události
      • Přehled událostí
      • Veletrhy/Semináře
      • Webinář
      Ovládněte statiku pomocí webinářů

      Připojte se ke špičkám v oboru a objevte řešení v oblasti stavebního inženýrství a softwaru. Rozšiřte své dovednosti díky našim přednáškám naživo!

      Sledujte další webináře
      3D FEA Software RFEM 6 | First Steps Obrázek v záhlaví nabídky | Novinky Webináře | Mobilní verze
      Využijte sílu inovací

      Objevte nejmodernější nástroje a vylepšení pro efektivnější práci v oblasti inženýrství.

      Prozkoumejte nové funkce
      Prozkoumejte nové funkce Obrázek banneru nabídky | Novinky_Vlastnosti produktu | Mobilní verze
    • Stáhnout plnou verzi

      Chcete si vyzkoušet sílu programů Dlubal? Je to vaše příležitost! S bezplatnou 90denní plnou verzí si můžete všechny naše programy plně otestovat.

      Spustit zkušební verzi nyní
      Bezplatná zóna Dlubal

      V bezplatné zóně Dlubal máte přístup k webinářům, článkům a možnostem vyzkoušení softwaru – vše zdarma a přehledně na jednom místě.

      Více informací
      Příklady
      • Statické modely ke stažení
      • Poskytnout statický model
      • Úvodní příklady a tutoriály
      • Verifikační příklady
      • Přehled obrázků
      Dokumenty
      • Online manuály
      • Manuály
      • Letáky, brožury a certifikáty
      Reference
      • Projekty zákazníků
      • Proč u nás zveřejnit svůj projekt?
      • Jak mohu postoupit svůj projekt ke zveřejnění?
      • Zveřejnit projekt
      Modely ke stažení zdarma

      Prozkoumejte tisíce hotových konstrukčních modelů. Stáhněte je, přizpůsobte si je a použijte jako šablony, které urychlí váš proces navrhování.

      Objevte modely
      Statické modely ke stažení Bezplatné modely ke stažení | Mobilní verze
      Bezplatná zóna Dlubal

      Získejte odbornou pomoc, kdykoli ji potřebujete. Využijte bezplatnou podporu pomocí umělé inteligence, e-mailovou podporu, webináře naživo a prémiové služby pro uživatele Servisní smlouvy Pro.

      Získejte podporu
      Bezplatná podpora a servis Bezplatná podpora a servis | Mobilní verze
    • E-learning
      • RFEM 6 pro začátečníky
      • RFEM 6 pro studenty
      • Programování v programu RFEM 6 a Python
      • RFEM 6 s programem Rhino & Grasshopper
      • RFEM 5 pro začátečníky
      • Modelování s programem RFEM 5
      • Videolekce statiky pro studenty
      • Krátké tutoriály k programům Dlubal
      • Nejlepší tipy a triky v programu RFEM
      • Záznamy online Dlubal školení
      • Záznamy Dlubal webinářů
      Studenti a školy
      • Programy pro statické výpočty studentům zdarma
      • Vyžádání nebo prodloužení studentské verze zdarma
      • Žádost o bezplatnou verzi pro pedagogy
      • Zveřejnit diplomovou práci
      • Proč u nás zveřejnit svou diplomovou práci?
      • Závěrečné práce s programem Dlubal Software
      • Software pro statiku školám zdarma
      • Vyžádat nabídku
      • Úvodní školení pro vysoké školy zdarma
      • Zažádat o termín školení
      Platforma znalostí
      • První kroky s programem RFEM
      • Videa
      • Online manuály
      • Wiki pro statiku
      • Databáze znalostí
      • Často kladené dotazy (FAQ)
      Infotainment
      • Podcast
      • Dlubal blog
      • Úvod do statické analýzy
      První kroky s programem RFEM 6

      Udělejte své první kroky s RFEM 6 a zjistěte, jak rychle můžete modelovat a počítat. Přizpůsobte si ho přidáním modulů pro ještě více možností.

      Začít
      3D FEA Software RFEM 6 | First Steps Obrázek v záhlaví nabídky | Novinky Webináře | Mobilní verze
      Programy pro statickou analýzu pro studenty zdarma

      Tisíce studentů po celém světě již těží z Dlubal Software. Využívejte bezplatný přístup, školení a odbornou podporu po celou dobu svých studií.

      Získat bezplatnou licenci
      Software pro statické výpočty zdarma pro studenty Software pro statické výpočty pro studenty zdarma
    • O společnosti
      • Historie a čísla
      • Filozofie naší společnosti
      • Proč Dlubal Software?
      • Srovnání produktů
      • Politika kvality
      • Náš tým
      Kontakt
      • Pobočky Dlubal po celém světě
      • Autorizovaní distributoři produktů Dlubal
      Reference
      • Recenze uživatelů
      • Projekty zákazníků
      • Případové studie
      • Proč u nás zveřejnit svůj projekt?
      • Verifikační příklady
      • Vaše recenze
      • Účast na výzkumných projektech
      Naši zákazníci

      Představujeme naše zákazníky, kteří realizují své projekty s Dlubal Software. Zjistěte, jak naši zákazníci po celém světě implementují inovativní řešení ve stavebnictví a inženýrství pomocí pokročilých nástrojů pro statické a dynamické analýzy.

      Podívejte se na naše zákazníky
      Budujme úspěch společně

      Zjistěte, jak špičkoví inženýři z celého světa důvěřují našim řešením a spolupracují s námi na zdokonalování svých projektů.

      Podívejte se na naše zákazníky
      Zobrazit naše zákazníky Obrázek v záhlaví nabídky | Společnost_Naši zákazníci_Mobilní zařízení
      Sejděte se s odborníky

      Naši specializovaní inženýři jsou vám k dispozici, aby vám pomohli s modelováním, posouzením a technickými výzvami – kdykoli a kdekoli.

      Spojte se s podporou
      Náš tým Obrázek v záhlaví nabidky | Společnost_Náš tým | Mobilní verze
    • Kariéra
      • Pracovní nabídky
      • Týmy
      • Blog zaměstnanců
      • Postřehy
      Pracovní nabídky
      • Všechny pracovní nabídky
      • Vývoj produktů
      • Zákaznická podpora
      • Prodej
      • Marketing
      • Vývoj softwaru
      • Administrativa
      • Stážisté
      • Ostatní
      Týmy
      • Vývoj produktů
      • Zákaznický servis
      • Obchod
      • Marketing
      • Vývoj softwaru
      • Administrativa
      Proč Dlubal?
      • Firemní kultura
      • Zaměstnanecké výhody
      Budujte svou budoucnost s námi

      Zjistěte, jak náš tým utváří budoucnost stavebnictví. Zažijte inovace, růst a zajímavé výzvy.

      Kariéra ve společnosti Dlubal Obrázek v záhlaví nabídky | Kariéra ve společnosti Dlubal Mobile
      Najděte svou vysněnou práci

      Přidejte se k přednímu světovému výrobci softwaru pro statické výpočty a posuňte svou kariéru na novou úroveň.

      Prohlédněte si aktuální nabídky práce
      Všechny pracovní nabídky Obrázek banneru nabídky | Volná pracovní místa Mobilní zařízení
    • E-shop
    Hlavní produkty
    Ikona reprezentující RFEM 6, softwarovou aplikaci pro výpočty pomocí metody konečných prvků.
    RFEM 6
    Ikona programu RSTAB 9 bez ohraničení
    RSTAB 9
    Ikona RWIND 3 bez ohraničení
    RWIND 3
    Ikona RSECTION 1 bez ohraničení
    RSECTION
    Online služby
    Ikona nástroje pro stanovení oblastí zatížení
    Nástroj pro stanovení oblastí zatížení
    Průřezové charakteristiky
    Průřezové charakteristiky
    Ikona API
    API
    Ikona výpočtu v cloudu
    Výpočty v cloudu
    Modely ke stažení
    Modely ke stažení
    Ikona komunity Dlubal
    Komunita Dlubal
    Ikona článků databáze znalostí
    Databáze znalostí
    Online webináře
    Webináře
    Přihlásit se ke svému účtu

    Zaregistrujte se do extranetu Dlubal, abyste získali většinu softwaru a měli exkluzivní přístup k vašim osobním údajům.

    Přihlásit se Vytvořit účet
    Trial verze 90 dní zdarma
    Přihlásit se ke svému účtu

    Zaregistrujte se do extranetu Dlubal, abyste získali většinu softwaru a měli exkluzivní přístup k vašim osobním údajům.

    Přihlásit se Vytvořit účet
    • Produkty
    • Metoda konečných prvků (MKP)
    • Addony pro RFEM 6
    • Dimenzování
    • Posouzení ocelových konstrukcí pro RFEM 6
    • Základní funkce
    Ikona RFEM 6 | Dlubal Software Posouzení ocelové konstrukce
    Online manuály
    • Manuál | Posouzení ocelové konstrukce
    • Tutoriál pro RFEM 6
    • RFEM 6 / RSTAB 9 | Začínáme
    }
    calculator icon
    Ceny
    Posouzení ocelových konstrukcí pro RFEM 6 | Funkce

    Posouzení ocelových konstrukcí pro RFEM 6 | Funkce

    Objevte hlavní funkce přídavného modulu Ocelové posouzení.

    Získejte kompaktní přehled o všech podstatných funkcích – od stability analýzy přes kroucení průřezu po analýzu napětí. Na této stránce se dozvíte, jak efektivně a normově posoudit ocelové konstrukce pomocí přídavného modulu Ocelové posouzení.

    Ikona pro stažení Stáhnout si bezplatnou zkušební verzi
    Ocelová konstrukce muzea Mocape, návrh společností Huana Engineering Consulting a B+G Ingenieure Bollinger + Grohmann GmbH. © Huana Engineering Consulting (Beijing) Co., Ltd.
    Subnavigation
    01
    Přehled
    02
    Základní funkce
    03
    Použitelnost
    04
    Požární odolnost
    05
    Návrh seizmicky odolného systému
    06
    Normy

    Výkonné funkce v addonu Posouzení ocelových konstrukcí

    S pomocí přídavného modulu Posouzení ocelových konstrukcí můžete ověřit únosnost profilů, stabilitu a použitelnost ocelových konstrukcí.

    Intuitivní posouzení ocelových konstrukcí

    Navrhujte a ověřujte ocelové konstrukce – včetně analýzy stability prutových konstrukcí ve stavu mezního únosnosti nebo návrhu únosnosti průřezu.

    • Posouzení tahu se zohledněním redukované plochy průřezu

      Program umožňuje snadné zohlednění zmenšení průřezu kvůli děrům pro šrouby v tahem namáhaných prvcích.

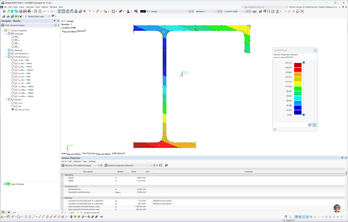
    • Posouzení pro obecné průřezy RSECTION

      Add-on Posouzení oceli vám mimo jiné pomáhá navrhovat obecné průřezy, které nejsou předdefinovány v knihovně průřezů. Můžete si vybrat z různých formátů posouzení v závislosti na použitém návrhovém standardu. Jedním z nich je například posouzení dle ekvivalentního napětí.

    • Zohlednění vnitřních sil z výpočtu s vázaným kroucením

      Přípona „Torze a kroucení (7 DOF)“ vám nabízí širokou škálu nových možností. Například můžete provádět výpočet členových konstrukcí v RFEM a RSTAB s ohledem na kroucení průřezu.

      • Vázané kroucení (7 stupňů volnosti)
    • Grafické zobrazení vlastního tvaru pro posouzení klopení

      Vlastní hodnota řešiče v programu určuje kritický zatěžovací faktor pro analýzu stability a zobrazuje rozhodující tvar módu. Podporuje analýzu vzpěru bočního kroucení a obecnou metodu podle EN 1993‑1‑1, 6.3.4.

    Dialog pro zadání lokálních redukcí průřezů při posuzování ocelových tahových prvků. Redukce lze zadat v absolutních hodnotách nebo v procentech.
    Tabulkové a grafické zobrazení vlastností průřezu a rozložení napětí pro navrhování vlastních průřezů podle normy EN 1993-1-5.
    Analýza vázaného kroucení při posouzení oceli s účinnými silami z vázaného kroucení.
    Grafické znázornění kritického vlastního tvaru pro klopení ve statické analýze
    Ikona hodnocení zákazníků

    Zjistěte, co říkají naši zákazníci o produktech Dlubal!

    Ikona podpory

    Vyzkoušejte si Dlubal naživo a sjednejte si online demo!

    Ikona ke stažení

    Vyzkoušejte si plnou verzi zdarma po dobu 90 dní

    Doporučené funkce a služby

    Bílá ikona používaná k zobrazení symbolu komunity na tmavém pozadí

    Komunita Dlubal

    Připojte se k aktivní komunitě inženýrů a projektantů. Pokládejte otázky, sdílejte nápady, navrhujte funkce a navazujte kontakty s jinými, kteří čelí podobným výzvám.

    Ikona symbolizující aplikační programové rozhraní, navržená s bílou grafikou vhodnou pro tmavé pozadí

    API

    Používejte Dlubal API k automatizaci procesů, integraci externích nástrojů a vytváření individuálních pracovních postupů přizpůsobených specifickým potřebám vašeho projektu.

    Bílá ikona vzdělávací platformy na tmavém pozadí, vhodná pro obsah školení Dlubal.

    Databáze znalostí

    Učte se rychle s video tutoriály a užitečnými průvodci krok za krokem. Najděte odpovědi, tipy a vzdělávací obsah pro všechny úrovně zkušeností.

    Ikona výpočetního systému White Cloud Computing navržená pro použití na tmavém pozadí

    Výpočty v cloudu

    Spouštějte své analýzy v cloudu – bez hardwarových omezení. Šetřete místní zdroje, zpracovávejte složité modely a pracujte kdekoli a kdykoli.

    Grafické zadání a kontrola definovaných uzlových podpor a vzpěrných délek pro posouzení stability

    S pomocí nadstavby pro ocelové posudky můžete efektivně provést stabilitní posudek, přičemž stanovení efektivních délek hraje rozhodující roli. V dialogovém okně zadávání definujete uzlové podpory a součinitele vzpěrných délek, které jsou potřebné pro výpočty.

    Pro jednoduchou dokumentaci a srozumitelnou kontrolu můžete uzlové podpory i resulterující segmenty se souvisejícími součiniteli vzpěrných délek přímo v pracovním okně RFEM/RSTAB graficky zobrazit. To zajišťuje jasnou vizualizaci a usnadňuje kontrolu vstupních dat.

    Další informace
    Uspořádání uzlových podpor pro stanovení vzpěrných délek pro analýzy stability v statických analýzách.

    Analýza stability pro studeně tvarované profily

    V doplňku osouzení lze provádět stabilitní posouzení za studena tvarovaných profilů RSECTION, jakož i profilů z databáze s mezilehlými výztuhami (sigma profily atd.) podle EN 1993-1-3.

    Doplněk podporuje úplnou analýzu a výpočet kritických zatížení, která mohou vést k jevům nestability, jako je vybočení nebo vzpěrno-kroucení. Přitom se bere v úvahu nejen vliv jednotlivých výztuh, ale také jejich poloha a rozložení uvnitř profilu. Kromě toho lze v případě potřeby použít alternativní metody výpočtu, aby se ověřila stabilita za zvláštních podmínek, jako jsou vysoké teplotní zatížení nebo mimořádné geometrie.

    Více informací
    Stabilitní analýza sigma profilu tvářeného za studena podle EN 1993-1-3.

    Analýza napětí

    Addon nabízí komplexní výpočet použitelnosti ocelových konstrukcí, zejména výpočet průhybů, které jsou porovnávány s normativními nebo ručně upravenými mezními hodnotami. Přitom je umožněno zohlednění převisů při výpočtu průhybů. V závislosti na druhu posuzovací situace mohou být stanoveny různé mezní hodnoty a existuje možnost ručního přizpůsobení referenčních délek a segmentací.

    Výpočet může být proveden jak pro výchozí systém, tak pro deformovaný systém. Dodatečně se provádí další detailní posouzení, jako je omezení dýchání stojiny podle EN 1993-2, v závislosti na vybrané normě pro posouzení.

    V programu RFEM/RSTAB probíhá grafické znázornění výsledků, včetně využití mezních hodnot a deformací. Výstup je plně integrován do tiskového protokolu RFEM/RSTAB, což umožňuje přehlednou a efektivní dokumentaci.

    Více informací
    Posouzení mezního stavu použitelnosti konstrukce se zaměřením na technická hlediska.

    Výstup diagramu teploty-času pro teplotu plynu a oceli

    V rámci posouzení požární odolnosti je rozhodující teplota konstrukce k okamžiku prokázání automaticky určena na základě vstupních údajů. Přídavný modul umožňuje vizualizovat průběh teploty v závislosti na čase. Pomocí zobrazení teplotně-časového diagramu můžete cíleně sledovat vývoj teploty plynu a oceli, což umožňuje přesnou analýzu tepelného zatížení a chování konstrukčních prvků v případě požáru. Dále je možné stanovit kritickou teplotu konstrukce.

    Více informací
    Diagram znázorňuje průběh teploty prvku při posouzení požární odolnosti pro vyhodnocení bezpečnosti ocelové konstrukce.

    Které další funkce očekáváte?

    Doplněk Ocelové posouzení se neustále vyvíjí a rozšiřuje o nové funkce. Objevte, co vše vám může ještě nabídnout, a povyšte své projekty na novou úroveň!

    Dialog pro konfiguraci požárně-odporových nastavení při posuzování ocelových konstrukcí, který obsahuje možnosti nastavení kritických teplot a požárního zatížení.

    Zohlednění žárového pozinkování součástí při stanovení teploty oceli

    Doplněk umožňuje automatické zjištění teploty konstrukčního prvku s přihlédnutím k žárovému zinkování. Nabízí možnost uživatelsky přizpůsobit součinitele použité pro určení teploty.

    Dialog pro úpravu prutu zaměřený na nastavení průhybu a návrhových podpor pro přesnější kontrolu konstrukčních prutů.

    Ruční úpravy referenčních délek a segmentace podle směru

    Doplněk umožňuje ruční nastavení referenčních délek a segmentů pro výpočet hranice průhybu, přičemž mohou být tyto hodnoty přizpůsobeny nezávisle na směru.

    Vizualizace překrytí výsledků posouzení oceli podle různých posouzení

    Filtr výsledků podle mezního stavu

    Doplněk nabízí možnost zobrazit posudky přímo v tabulární formě i graficky. Rozsáhlé možnosti filtrování umožňují cílený výběr požadovaných posudků, jak podle mezního stavu, tak podle druhu posudku. Tyto filtrační funkce usnadňují analýzu a vyhodnocování výsledků tím, že umožňují přesné zaměření na relevantní posudky.

    Objevte všechny funkce addonu Posouzení ocelových konstrukcí

    Addon Posouzení ocelových konstrukcí obsahuje mnoho užitečných funkcí, které vás podporují při statickém a dynamickém výpočtu.

    Podívejte se dovnitř

    E-shop

    Sestavte si svůj individuální balíček programů! Veškeré ceny najdete v online přehledu.

    • Rodina RFEM 6
    • Rodina RSTAB 9
    Přejděte do e-shopu

    Spočítejte si cenu

    3 300,00 USD
    +110,00 USD
    Addon „Posouzení ocelových konstrukcí“
    Celková částka 3 410,00 USD
    Software pro navrhování a statické výpočty konstrukcí
    Dlubal Software s.r.o.

    Anglická 28
    120 00 Praha
    Česká republika

    +420 227 203 203 [email protected]
    Dlubal Software GmbH

    Am Zellweg 2
    93464 Tiefenbach
    Německo

    +49 9673 9203-0 [email protected]
    Řešení
    • Železobetonové konstrukce
    • Ocelové konstrukce
    • Dřevěné konstrukce
    • Ocelové přípoje
    Produkty
    • RFEM 6
    • RSTAB 9
    • RSECTION 1
    • RWIND 3
    Podpora
    • Často kladené dotazy (FAQ)
    • Položit individuální dotaz
    • Geo-Zone Tool pro stanovení zatížení
    • Kontaktovat obchodní oddělení
    Novinky
    • Přihlásit se k odběru novinek
    • Aktuální novinky
    • Přehled událostí
    • Online školení
    Zdroje
    • Plná zkušební verze zdarma
    • Zveřejnit projekt
    • Projekty zákazníků
    • Online manuály
    Přidejte se i Vy k Dlubal
    Komunita Dlubal YouTube Facebook Pinterest TikTok Instagram
    © 2001–2026 Dlubal Software GmbH | Všechna práva vyhrazena
    Právní poučení
    O společnosti
    Mapa stránek
    Jazyk
    • Deutsch
    • English
    • Français
    • Español
    • Português
    • Italiano
    • Česky
    • Polski
    • Pусский
    • 中文(简体)