1817x
002667
25. September 2023

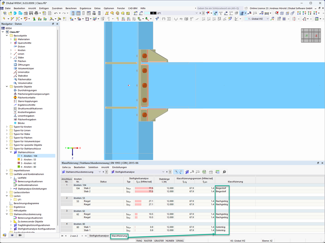
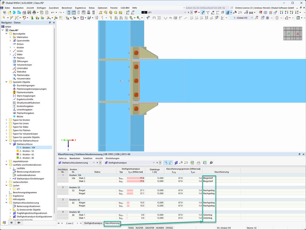
Klassifizierung von Stahlanschlüssen nach der Steifigkeit

Im Add-On Stahlanschlüsse können Sie die Steifigkeiten der Anschlüsse klassifizieren.

Für die gewählten Schnittgrößen N, My und/oder Mz werden neben der Anfangssteifigkeit auch die Grenzwerte für gelenkige und starre Anschlüsse ausgegeben. Die sich daraus ergebene Klassifizierung wird anschließend mit "gelenkig", "nachgiebig" oder "starr" tabellarisch dargestellt.

Zum Erklärvideo

Links


;