511x
005641
20. Dezember 2024

Datenaustausch RFEM 6 und HiCAD

Welche Schnittstellen stehen mir für den Datenaustausch zwischen RFEM 6 und HiCAD zur Verfügung?


Antwort:

Für den Datenaustausch zwischen HiCAD und RFEM 6 steht Ihnen der Dateibasierte Datenaustausch zur Verfügung.
Die folgenden Formate werden dabei von den Programmen unterstützt:

Info

In dieser FAQ zeigen wir Ihnen den Datenaustausch über die Schnittstellen IFC und DSTV-Produkt. Bei Fragen zu einem der anderen Dateiformate wenden Sie sich gerne an unseren Support.

IFC-Datei aus HiCAD in RFEM 6

Für den Export aus HiCAD im IFC-Format stehen Ihnen die Modellansichtsdefinitionen Design Transfer View und Reference View zur Verfügung. Beide Formate können in RFEM6 importiert werden.

Nach dem Import in RFEM6 öffnet sich dort automatisch der IFC-Navigator, über welchen die importierten Komponenten anwählbar sind. Die Struktur ist so aufgebaut, wie die in HiCAD erstellte Baugruppenstruktur.

Die Sichtbarkeiten können Sie zudem über die IFC-Objekttypen im Navigator steuern.

Mit einem rechtsklick auf eines oder mehrere der Objekte haben Sie die Möglichkeit, diese in RFEM-Objekte umzuwandeln.

Info

RFEM verwendet hierfür die in den Konvertierungstabellen hinterlegten Profilquerschnitte und Materialien. Nähere Informationen zu den Konvertierungstabellen finden Sie in der FAQ IFC Querschnitte werden nicht richtig importiert .

IFC-Datei aus RFEM 6 in HiCAD

Für den Austausch einer IFC-Datei aus RFEM6 ist es wichtig, dass Sie beim Abspeichern den Dateityp IFC 4 – Reference view verwenden.

Anschließend können Sie die Datei in HiCAD mittels 3D-Import importieren.

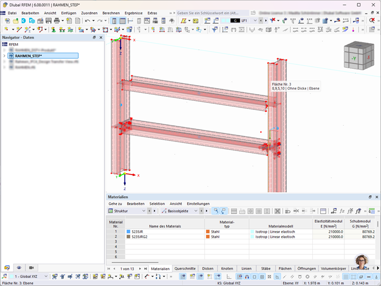
DSTV-Produkt (.stp) aus HiCAD in RFEM 6

Für den Austausch im DSTV-Format .stp wählen Sie in HiCAD die Speicheroption Weitere… und DSTV-Produkt.

Für den import in RFEM6 steht Ihnen auch hier die Option DSTV zur Verfügung, über welche Sie dieses Dateiformat einlesen können.

Es öffnet sich dann im Anschluss automatisch das Fenster Konvertierungstabellen, über welches Sie die Materialien und Profilquerschnitte festlegen können.

Info

Der Austausch über das 3D-Format Step funktioniert ebenfalls, führt allerdings dazu, dass die Profilquerschnitte in RFEM als Linien und Flächenelemente importiert werden. Nähere Informationen dazu finden Sie in der FAQ Unterschiede zwischen DSTV- und STEP-Schnittstellen beim Import von .stp-Dateien .

DSTV-Produkt (.stp) aus RFEM 6 in HiCAD

Wenn Sie eine DSTV-Datei aus RFEM 6 exportieren so können Sie diese in HiCAD ebenfalls über das Öffnen eines DSTV-Produkts importieren.

Sie erhalten dort die Schwerpunktlinien der Profile in Form von sogenannten Stabelementen. Diese können Sie dann wiederum mit dem Befehl Austauschen in Normprofil in Profile umwandeln.



;