366x
004109
2024-01-05

Results

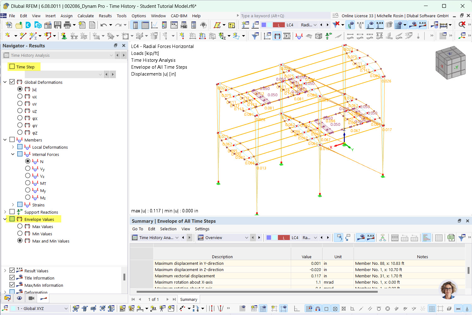
After a successful calculation, the results of the time history analysis load case are displayed: In the work window, you can see the global deformations as an envelope; the deformations, support forces, internal forces, or stresses of the individual model objects are displayed in the table. This way, the time history analysis results are fully integrated into the program interface of RFEM or RSTAB.

Work Window

If the "Time Step" check box at the top of the "Navigator – Results" is not selected, the Result Envelope is displayed. As with Result Combinations, it results from the maximum and minimum result values of the deformations, internal forces, or stresses. In the "Result Envelope" category in the navigator, you can control which extreme values are displayed.

When selecting the "Time Step" check box, you can select the time step in the list for which you want to display the results graphically. You can also use the buttons Previous and Next to switch between the entries.

For the graphical display of the results, all result types available for a structural load case are also available for selection in the navigator. Depending on the model type, they include global deformations, internal forces of members and surfaces, and support reactions, for example.

The result types of the model objects are described in the chapter Results of the RFEM manual.

Table

The result tables of the dynamic analysis are displayed automatically when displaying the results of a dynamic load case. You can use the categories and subcategories to control the display of the results in the table (see the chapter Tables of the RFEM Manual). Various subcategories are available for the time history analysis, which are presented in the following chapters.

Right-click a tab to jump quickly to a specific table. In the shortcut menu, you can then select the desired table (see the image Shortcut Menu for Table Tab ).

Info

The options for evaluating results are described in general in the chapter Result Evaluation of the RFEM manual.

Units and Decimal Places

You can adjust the units and decimal places as described in the chapter Units and Decimal Places. Since the primary concern involves deformations, internal forces, stresses, and strains, the parameters of the "Static Analysis" category described in the chapter Changing Units of the RFEM manual are relevant.