367x
004109
2024-01-05

Wyniki

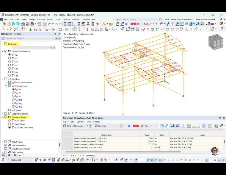
Po pomyślnym zakończeniu obliczeń wyświetlane są wyniki przypadku obciążenia analizy historii czasowej. W oknie roboczym widoczne są globalne deformacje jako obwiednia; w tabeli widoczne są odkształcenia, siły podporowe, siły wewnętrzne lub naprężenia poszczególnych obiektów modelu. Dzięki temu wyniki analizy przebiegu czasowego są w pełni zintegrowane z interfejsem programu RFEM lub RSTAB.

okno robocze

Jeżeli pole wyboru 'Krok czasowy' w górnej części 'Nawigatora - Wyniki' nie jest zaznaczone, wyświetlana jest obwiednia wyników. Podobnie jak w przypadku Kombinacje wyników, odkształcenie wynika z maksymalnych i minimalnych wartości wyników odkształceń wewnętrznych. sił lub naprężeń. W kategorii 'Obwiednia wyników' w nawigatorze można określić, które wartości ekstremalne mają być wyświetlane.

W przypadku zaznaczenia pola wyboru 'Krok czasowy' można wybrać z listy krok czasowy, którego wyniki mają zostać przedstawione graficznie. Alternatywnie można przełączać między wpisami za pomocą przycisków Poprzedni i Następny .

W celu przedstawienia graficznego w nawigatorze można wybrać wszystkie typy wyników dostępne również dla przypadku obciążenia statycznego. W zależności od typu modelu są to na przykład globalne odkształcenia, siły wewnętrzne prętów i powierzchni oraz reakcje podporowe.

Typy wyników dla obiektów modelu są opisane w rozdziale Wyniki instrukcji obsługi programu RFEM.

Tabela

Tabele wyników analizy dynamicznej są wyświetlane automatycznie podczas wyświetlania wyników przypadku obciążenia dynamicznego. Za pomocą kategorii i podkategorii można kontrolować sposób wyświetlania wyników w tabeli (patrz rozdział Tabele RFEM). instrukcji). Do analizy przebiegu czasowego dostępne są różne podkategorie. Zostały one opisane w kolejnych rozdziałach.

Aby szybko przejść do konkretnej tabeli, należy kliknąć odpowiednią zakładkę prawym przyciskiem myszy. W menu kontekstowym można wybrać żądaną tabelę (patrz obrazek Menu kontekstowe tabeli, zakładka ).

Informacje

Możliwości oceny wyników zostały ogólnie opisane w rozdziale Ocena wyników instrukcji obsługi programu RFEM.

Jednostki i miejsca dziesiętne

Jednostki i miejsca dziesiętne można dostosować w sposób opisany w rozdziale Jednostki i miejsca dziesiętne. Ponieważ zajmujemy się głównie odkształceniami, siłami wewnętrznymi, naprężeniami i odkształceniami, konieczna jest zmiana jednostek]] w instrukcji do programu RFEM, są one istotne dla parametrów kategorii 'Analiza statyczna'.