234x
004815
15. Januar 2025
2 Theoretische Grundlagen

5.4 Gebrauchstauglichkeitsnachweis Gesamt

Der obere Teil der Maske bietet eine Zusammenfassung der maßgebenden Gebrauchstauglichkeitsnachweise. Im unteren Teil werden die Zwischenergebnisse des aktuellen FE- oder Rasterpunkts (des Punkts, der im oberen Teil markiert ist) mit allen bemessungsrelevanten Parametern ausgewiesen. Die Kapitel lassen sich mit [Plus] öffnen und mit [Minus] schließen.


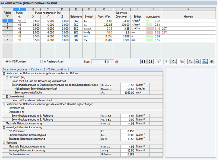
Bild 5.6 zeigt die Ergebnismaske einer analytischen Gebrauchstauglichkeitsuntersuchung. Im Kapitel 5.7 sind die Ergebnismasken beschrieben, die nach einer nichtlinearen Gebrauchstauglichkeitsberechnung erscheinen.

Die Nachweismethode wird in Maske 1.1 Basisangaben, Register Gebrauchstauglichkeit festgelegt (siehe Bild 3.8).

Fläche Nr.

Es werden die Nummern der Flächen angegeben, in denen die maßgebenden Punkte liegen.

Punkt Nr.

Nummerierter Punkt in technischer Darstellung

In diesen FE- bzw. Rasterpunkten liegen die größten Ausnutzungen für die geforderten Nachweise vor. Die Art des Nachweises wird in Spalte F Symbol angegeben.
Die FE-Netzpunkte N werden automatisch erzeugt. Die Rasterpunkte R lassen sich in RFEM steuern (siehe Kapitel 8.12 des RFEM-Handbuchs).

Punkt-Koordinaten X/Y/Z

Die drei Spalten geben die Koordinaten der maßgebenden FE- oder Rasterpunkte an.

Belastung

In Spalte E werden die Lastfälle, Last- und Ergebniskombinationen ausgewiesen, deren Schnittgrößen zur größten Ausnutzung beim jeweiligen Gebrauchstauglichkeitsnachweis führen.

Symbol

Spalte F beschreibt die Art des Gebrauchstauglichkeitsnachweises. Bei der analytischen Methode werden bis zu sechs Nachweistypen angezeigt. Diese sind im Kapitel 2.6.4 anhand eines Beispiels erläutert.


Die Nachweistypen bedeuten im Einzelnen:

Tabelle 5.2 Gebrauchstauglichkeitsnachweise nach analytischer Methode
Typ Nachweis GZG
σc Begrenzung der Betondruckspannung (→ Kapitel 2.6.4.7) gemäß Vorgabe in Maske 1.3 Flächen (siehe Bild 3.19).
σs Begrenzung der Betonstahlspannung (→ Kapitel 2.6.4.8) gemäß Vorgabe in Maske 1.3 Flächen (siehe Bild 3.18).
as,min Mindestbewehrung zur Begrenzung der Rissbreite (→ Kapitel 2.6.4.9) gemäß Vorgabe in Maske 1.3 Flächen (siehe Bild 2.97).
lim Begrenzung des Stabdurchmessers (→ Kapitel 2.6.4.10) gemäß Vorgabe in Maske 1.4 Bewehrung (siehe Bild 3.31).
ds Begrenzung des Stabdurchmessers (→ Kapitel 2.6.4.10) gemäß Vorgabe in Maske 1.4 Bewehrung (siehe Bild 3.31).
lim sl Begrenzung des Stababstands (→ Kapitel 2.6.4.11) gemäß Vorgabe in Maske 1.4 Bewehrung (siehe Bild 3.31).
wk Begrenzung der Rissbreite (→ Kapitel 2.6.4.12) gemäß Vorgabe in Maske 1.3 Flächen (siehe Bild 3.18).

Vorhandener Wert

In dieser Spalte werden die Werte angegeben, die von allen untersuchten Flächen für die Nachweise im Grenzzustand der Gebrauchstauglichkeit maßgebend sind.

Grenzwert

Die Grenzwerte ermitteln sich aus den Normvorgaben und der Belastungssituation. Im Kapitel 2.6.4 ist die Ermittlung der Grenzwerte beschrieben.

Ausnutzung

Abstrakte grafische Darstellung einer Beziehung zwischen technischen Elementen.
In der Spalte J wird das Verhältnis von vorhandenem Wert (Spalte G) zu Grenzwert (Spalte H) ausgegeben. Bei Ausnutzungen größer 1 ist der Nachweis somit nicht erfüllt. Die Länge des farbigen Balkens stellt die jeweilige Ausnutzung in grafischer Form dar.

Hinweis

Für den Gebrauchstauglichkeitsnachweis müssen nicht sämtliche Nachweistypen erfüllt sein (siehe Erläuterung in Bild 3.11).

Hinweis

Die letzte Spalte verweist auf Unbemessbarkeiten oder Besonderheiten, die sich im Zuge der Bemessung ergeben haben. Die Nummern sind in der Statusleiste näher erläutert.

Screenshot mit Systemmeldungen, Benachrichtigungen und Statusinformationen.

Über die links dargestellte Schaltfläche lassen sich sämtliche [Meldungen] des aktuellen Bemessungsfalls einsehen. Es erscheint ein Dialog mit einer Übersicht (siehe Bild 5.3).

Hinweis

Die Schaltflächen sind im Kapitel 6 beschrieben.

Übergeordnetes Kapitel